Town of Whitby, ON
Northeast Corner of South Blair Street and Gerdau Court, Town of Whitby
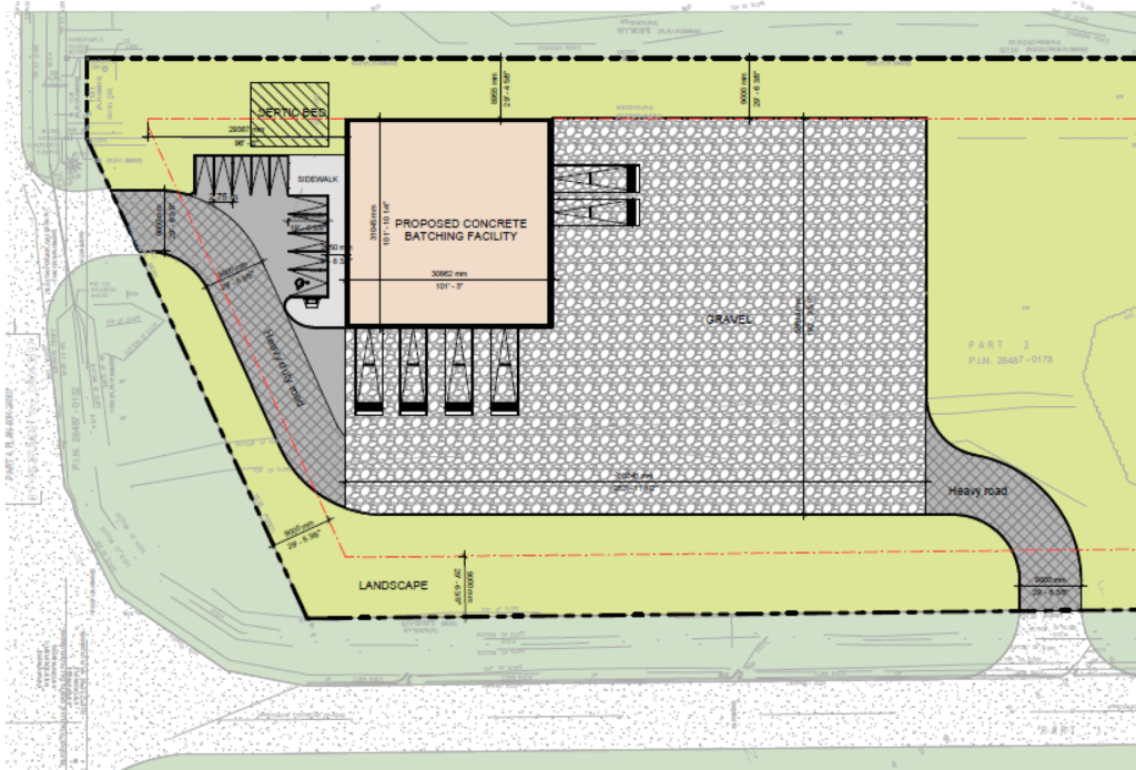
The proposed development comprises of 957.10 m² Concrete Batching Plant within a prefabricated steel structure on a slab-on-grade concrete foundation. The facility will manufacture concrete products for construction and infrastructure projects. Access to the site is proposed via two full-movement driveways from South Blair Street and Gerdau Avenue, with the South Blair Street access aligned to the private driveway of SkyZone. The development will provide 10 parking spaces, including one accessible space, along with six loading bays.